Located north of 4th Ave in Point Grey, this property offers tremendous renovation potential or the opportunity to build your dream home on it’s substantial 66'x 165.15' lot. Situated on the high side of the street, providing stunning west-facing views of Burrard Inlet, city skyline, and North Shore mountains. The elevated position maximizes the panoramic vistas while convenient lane access enhances functionality. The generous outdoor space provides endless possibilities for landscaping and entertainment areas. The location is unparalleled with Jericho Beach just minutes away, along with proximity to UBC, Queen Mary, and Lord Byng. This unique offering combines prime location, stunning natural environment, and significant development potential in Point Grey's coveted residential area.
General Info
Price
$7,000,000
Total Bedrooms
3
Total Bathrooms
2
Half Bathrooms
1
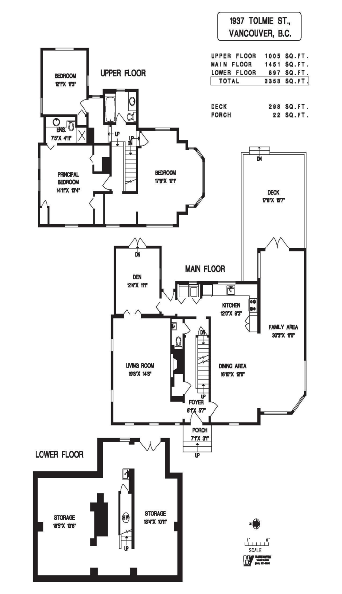
Floor Area Total (sqft)
3353
Lot Size
10907.5
Lot Size Depth
Feet
Lot Size Frontage
66
Basement
Partially Finished
Basement Features
-
Property Metrics
Year Built
1936
Age Of Building
90
Building Type
Single Family Residence
Property Type
Residential
Stories
2
Appliances Included
Washer/Dryer, Dishwasher, Refrigerator, Stove
Building Features
-
Structures
Residential Detached
Additional Details
MLS® #
R3040986
Building Name
-
Area
Vancouver West
Neighbourhood
Point Grey
City
Vancouver
Postal Code
V6R 4C1
Price per Sqft
$2,088
Gross Taxes
$35,609.2
Ownership Type
Freehold NonStrata
Maintenance Fee
-
Community Features
Shopping Nearby
Heating & Cooling
Fireplace
1
Heating Type
Baseboard, Electric
Utilities
Utility Type
Electricity Connected, Natural Gas Connected, Water Connected
Utility Sewer
Public Sewer, Sanitary Sewer
Water (WaterSource)
Public
Parking
Parking Type
Carport Single, Lane Access
Total Parking Spaces
2
Rooms
Floor
Type
Dimensions
Main Level
Living Room
19'8 x 19'8 ft
Main Level
Dining Room
16'10 x 16'10 ft
Main Level
Kitchen
12'0 x 12'0 ft
Main Level
Family Room
30'3 x 30'3 ft
Main Level
Den
12'4 x 12'4 ft
Main Level
Foyer
6'1 x 6'1 ft
Above Level
Primary Bedroom
14'11 x 14'11 ft
Above Level
Bedroom
12'1 x 12'1 ft
Above Level
Bedroom
17'8 x 17'8 ft
Basement Level
Recreation Room
18'5 x 18'5 ft
Basement Level
Storage
18'4 x 18'4 ft
Bathrooms
Floor
Ensuite
Pieces
Main Level
No
#2
Above Level
Yes
#3
Above Level
No
#3
Listed by: WESTSIDE Tom Gradecak Realty
NOTE: This representation is based in whole or in part on data generated by the Chilliwack & District Real Estate Board, Fraser Valley Real Estate Board or Greater Vancouver REALTORS® which assumes no responsibility for its accuracy.
Neighborhood & Transit Info
Public Schools
Elementary
Queen Mary Elementary School
0.54 km
Secondary
Lord Byng Secondary School
1.91 km
Information includes BC Government Open License data; school details change often and are offered solely as general guidance.
Private Schools
Elementary, Secondary
West Point Grey Academy
0.92 km
Elementary, Secondary
West Point Grey Academy
0.92 km
Closest Transit
Bus Stop
Eastbound W 4th Ave @ Tolmie St
0.09 km
Skytrain
Skytrain @ Yaletown-Roundhouse Stn
6.54 km
Crime Rate
Total Crime Rate
Average
Violent Crime Rate
Below Average
Property Crime Rate
Above Average
Demographics
Post-Secondary Education
Above Average
52.9%
No Certificate/Degree
Below Average
6.9%
Owner Occupied
Below Average
28.1%
Employment Rate
Below Average
52.5%
Noise/ Power Lines
Road/Hwy Noise
Possible
Railway/Sky train Noise
Unlikely
Airport/Port Noise
Unlikely
Close to major Power Lines
Unlikely
Other
Agricultural Land Reserve (ALR)
Unlikely
Flood Area
Unlikely
Close to Cemeteries
Unlikely
Local Info
Estimated Mortgage Calculator
/month
Principal & Interest
Property Taxes$2,967
Maintenance fee0
Financing 80% of the $7,000,000 asking price over 30 years at 4% results in approximately $29,702/month in total estimated carrying costs, $2,967 property tax.
All figures are informational estimates by Estateblock.com; actual mortgage payments and insurance rates vary by many factors.
Listing data last synced:
Estimated Cashflow Calculator
/month
Mortgage Payment
Monthly Payment
Break Even Down Payment0%
This listing generates an estimated $14,700/month in rental income, leaving a -$15,418/month cashflow at current carrying costs. Investors targeting break-even would need roughly 67% down.
All figures are informational estimates by Estateblock.com; actual mortgage payments and insurance rates vary by many factors.
Home Price Evaluation Chart
This Home
$7,000,000
Vancouver
Loading...
Point Grey
Loading...
This listing has no active comparable properties in Vancouver at present. The price evaluation chart will update as similar listings become available.
Data is based on list prices of similar active listings. This representation is based in whole or in part on data generated by the Chilliwack & District Real Estate Board, Fraser Valley Real Estate Board or Real Estate Board of Greater Vancouver which assumes no responsibility for its accuracy
Property FAQs
What are the closest top-rated schools to 1937 Tolmie Street, Vancouver, BC?
The closest top-rated schools are Queen Mary Elementary School and Lord Byng Secondary School.
Is 1937 Tolmie Street, Vancouver, BC in a flood zone?
Flood risk status: No.
What is the estimated monthly mortgage and strata fee for 1937 Tolmie Street, Vancouver, BC?
With a standard down payment, the estimated monthly mortgage is approximately $42,000.
Award-Winning REALTOR® with 11+ Years of Experience Serving Greater Vancouver
Claim Your Rebate
Attach at least one supporting item (image, video, document, or URL) to verify your rebate action.
This helps us confirm your eligibility and process your rebate quickly.