1 421 W 23rd Ave, Vancouver, BC

$1,599,900
Est. Mortgage /mo

MLS® R3088193 · Yukon Village

3 Beds
3 Baths
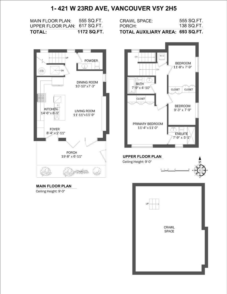
1172 sqft
1365 $ /sqft
249.64 $ Maint. fee
2026 Built
$1,599,900
Est. /mo with 20% down
$1,365/sqft
Dan Marusin
Dan Marusin
Renanza Realty
778-918-5990
Award-Winning REALTOR® with 11+ Years of Experience Serving Greater Vancouver
Go See This Home Now

Property Details & Specs

Yukon Village - This thoughtfully designed coach home offers a refined balance of comfort, privacy, and convenience. Spanning two well-planned storeys, the home features three bedrooms on one level and 2.5 baths, creating an intuitive layout that feels both efficient and generous. Open-concept living anchors the main floor, ideal for everyday living and effortless hosting, while a private patio extends the space outdoors. Comfort is elevated with air conditioning, a heat pump, and radiant in-floor heating throughout. Set steps from local shops, SkyTrain, and an array of nearby parks, with Edith Cavell and Hamber school catchments close by, this is a low-maintenance home designed for those who value lifestyle, walkability, and ease without compromise. A smart, timeless choice.

General Info

Price $1,599,900
Total Bedrooms 3
Total Bathrooms 2
Half Bathrooms 1
Floor Area Total (sqft) 1172
Lot Size 7350.75
Lot Size Depth Feet
Lot Size Frontage 49.5
Basement Crawl Space
Basement Features -

Property Metrics

Year Built 2026
Age Of Building 0
Building Type Half Duplex
Property Type Residential
Stories 2
Appliances Included Washer/Dryer, Dishwasher, Refrigerator, Stove
Building Amenities Trash, Maintenance Grounds, Sewer, Water
Building Features -
Structures Duplex, Residential Attached

Additional Details

MLS® # R3088193
Building Name Yukon Village
Area Vancouver West
Neighbourhood Cambie
City Vancouver
Postal Code V5Y 2H5
Price per Sqft $1,365
Gross Taxes 0
Ownership Type Freehold Strata
Maintenance Fee $249.64
Amenities Nearby Trash, Maintenance Grounds, Sewer, Water
Fixtures Included -

Heating & Cooling

Fireplace 0
Heating Type Heat Pump, Radiant
Cooling Central Air, Air Conditioning

Utilities

Utility Type Electricity Connected, Natural Gas Connected, Water Connected
Utility Sewer Public Sewer, Sanitary Sewer, Storm Sewer
Water (WaterSource) Public

Parking

Parking Type Carport Single, Lane Access, Garage Door Opener
Total Parking Spaces 0
Listed by: Macdonald Realty & Macdonald Realty & Macdonald Realty

NOTE: This representation is based in whole or in part on data generated by the Chilliwack & District Real Estate Board, Fraser Valley Real Estate Board or Greater Vancouver REALTORS® which assumes no responsibility for its accuracy.

Neighborhood & Transit Info

Public Schools

Elementary
Edith Cavell Elementary School
Above Average
0.38 km
7.1/10

Information includes BC Government Open License data; school details change often and are offered solely as general guidance.

Private Schools

Elementary
Blessed Sacrament School
0.98 km
Secondary
St. John's International
1.43 km

Closest Transit

Bus Stop
Southbound Cambie St @ W 22 Ave
0.17 km
Skytrain
Skytrain @ King Edward Stn
0.21 km

Crime Rate

Total Crime Rate
Average
Violent Crime Rate
Below Average
Property Crime Rate
Above Average

Demographics

Post-Secondary Education
Above Average
52.9%
No Certificate/Degree
Below Average
9.2%
Owner Occupied
Below Average
53.9%
Employment Rate
Average
59.3%

Noise/ Power Lines

Road/Hwy Noise
Unlikely
Railway/Sky train Noise
Unlikely
Airport/Port Noise
Unlikely
Close to major Power Lines
Unlikely

Other

Agricultural Land Reserve (ALR)
Unlikely
Flood Area
Unlikely
Close to Cemeteries
Unlikely

Local Info

Estimated Mortgage Calculator

/month
Principal & Interest
Property Taxes $0
Maintenance fee 0
Based on a 30-year fixed at 4% interest with 20% down ($319,980), the estimated monthly payment for this listing is $6,361/month — $6,111 principal & interest, $250 maintenance fee.
All figures are informational estimates by Estateblock.com; actual mortgage payments and insurance rates vary by many factors.
Listing data last synced:

Estimated Cashflow Calculator

/month
Mortgage Payment
Monthly Payment
Break Even Down Payment 0%
At an estimated rental income of $4,159/month, this property runs a $2,255/month shortfall after mortgage and carrying costs. Break-even requires approximately 50% down.
All figures are informational estimates by Estateblock.com; actual mortgage payments and insurance rates vary by many factors.

Home Price Evaluation Chart

Beds Home Types Square Feet Lot Size Year Built
This Home $1,599,900
Vancouver Loading...
Cambie Loading...
Comparable data is unavailable at the neighbourhood level. City-wide in Vancouver, similar Half Duplexs average $1,263,300 across 7 active listings — this listing is 26.6% above the Vancouver average.
Data is based on list prices of similar active listings. This representation is based in whole or in part on data generated by the Chilliwack & District Real Estate Board, Fraser Valley Real Estate Board or Real Estate Board of Greater Vancouver which assumes no responsibility for its accuracy

Property FAQs

What are the closest top-rated schools to 1 421 W 23rd Avenue, Vancouver, BC?

Is 1 421 W 23rd Avenue, Vancouver, BC in a flood zone?

What is the estimated monthly mortgage and strata fee for 1 421 W 23rd Avenue, Vancouver, BC?

Dan Marusin
Dan Marusin
Renanza Realty
778-918-5990
Award-Winning REALTOR® with 11+ Years of Experience Serving Greater Vancouver

Earn Cashback

Potential Cashback for this listing if you buy with us

$0
out of $10,224
0 of 17 missions
Your paragraph text

Sign up on Estateblock.com

$511 / 5%

Buy with us & save on this property

Book a tour

Please complete the form. We will the arrangements and give you a call, typically within 1-2 hours. Or Call Us 778-918-5990
Thank you Your message has been sent