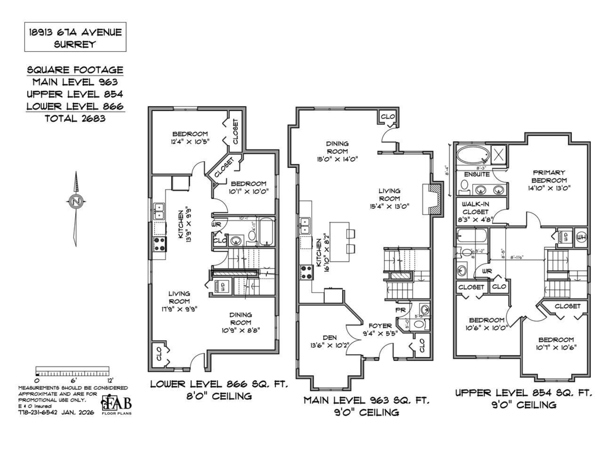
The subject property is a two-story single-family home with a fully finished basement, built in 2008 and located at 18913 67A Avenue in the Clayton Heights area of Surrey. The home offers approximately 2,683 square feet of finished living space over three levels, including 866 square feet on the lower level, 963 square feet on the main floor, and 854 square feet on the upper level. The basement contains an unauthorized private-entry suite suitable for extended family use. The dwelling is wood-frame construction with Hardie plank siding, asphalt shingle roofing, and a detached double garage. Overall condition is average with standard finishes and good remaining economic life. The neighborhood is a well-established suburban area close to schools, shopping, parks, and major routes.
General Info
Price
$1,198,000
Total Bedrooms
5
Total Bathrooms
3
Half Bathrooms
1
Floor Area Total (sqft)
2683
Lot Size
3074
Lot Size Depth
Feet
Lot Size Frontage
0
Basement
Finished
Basement Features
-
Property Metrics
Year Built
2008
Age Of Building
18
Building Type
Single Family Residence
Property Type
Residential
Stories
2
Building Features
-
Structures
Residential Detached
Additional Details
MLS® #
R3084826
Building Name
Clayton
Area
Cloverdale
Neighbourhood
Clayton
City
Surrey
Postal Code
V4N 6A1
Price per Sqft
$447
Gross Taxes
$6,314.02
Ownership Type
Freehold NonStrata
Maintenance Fee
-
Community Features
Shopping Nearby
Fixtures Included
1
Heating & Cooling
Fireplace
1
Heating Type
Baseboard, Electric
Utilities
Utility Type
Electricity Connected, Natural Gas Connected, Water Connected
Utility Sewer
Public Sewer, Sanitary Sewer, Storm Sewer
Water (WaterSource)
Public
Parking
Parking Type
Garage Double, Open, Guest, Lane Access, Rear Access, Asphalt
Total Parking Spaces
2
Rooms
Floor
Type
Dimensions
Main Level
Foyer
9'4 x 9'4 ft
Main Level
Den
13'6 x 13'6 ft
Main Level
Other
5'9 x 5'9 ft
Main Level
Kitchen
16'10 x 16'10 ft
Main Level
Living Room
15'4 x 15'4 ft
Main Level
Dining Room
15' x 15' ft
Above Level
Other
5'2 x 5'2 ft
Above Level
Bedroom
10'7 x 10'7 ft
Above Level
Bedroom
10'6 x 10'6 ft
Above Level
Primary Bedroom
14'10 x 14'10 ft
Above Level
Walk-In Closet
8'3 x 8'3 ft
Above Level
Other
8'3 x 8'3 ft
Below
Dining Room
10'9 x 10'9 ft
Below
Living Room
17'9 x 17'9 ft
Below
Kitchen
13'9 x 13'9 ft
Below
Bedroom
12'4 x 12'4 ft
Below
Bedroom
10'1 x 10'1 ft
Below
Other
10'4 x 10'4 ft
Bathrooms
Floor
Ensuite
Pieces
Main Level
No
#2
Above Level
No
#4
Above Level
Yes
#5
Below
No
#4
Listed by: RE/MAX LIFESTYLES REALTY
NOTE: This representation is based in whole or in part on data generated by the Chilliwack & District Real Estate Board, Fraser Valley Real Estate Board or Greater Vancouver REALTORS® which assumes no responsibility for its accuracy.
Neighborhood & Transit Info
Public Schools
Elementary
Hazelgrove Elementary School
Average
0.64 km
5.5/10
Secondary
Clayton Heights Secondary School
0.62 km
Information includes BC Government Open License data; school details change often and are offered solely as general guidance.
Private Schools
Elementary, Secondary
Bibleway Christian Academy
1.65 km
Elementary, Secondary
Bibleway Christian Academy
1.65 km
Closest Transit
Bus Stop
Southbound 188 St @ 68 Ave
0.28 km
Skytrain
Skytrain @ Clayton Station ( Under Construction till 2029)
0.51 km
Crime Rate
Total Crime Rate
Average
Violent Crime Rate
Below Average
Property Crime Rate
Average
Demographics
Post-Secondary Education
Below Average
22.7%
No Certificate/Degree
Below Average
11.8%
Owner Occupied
Above Average
87.5%
Employment Rate
Above Average
70.1%
Noise/ Power Lines
Road/Hwy Noise
Possible
Railway/Sky train Noise
Unlikely
Airport/Port Noise
Unlikely
Close to major Power Lines
Unlikely
Other
Agricultural Land Reserve (ALR)
Unlikely
Flood Area
Unlikely
Close to Cemeteries
Unlikely
Local Info
Estimated Mortgage Calculator
/month
Principal & Interest
Property Taxes$526
Maintenance fee0
Based on a 30-year fixed at 4% interest with 20% down ($239,600), the estimated monthly payment for this listing is $5,102/month — $4,576 principal & interest, $526 property tax.
All figures are informational estimates by Estateblock.com; actual mortgage payments and insurance rates vary by many factors.
Listing data last synced:
Estimated Cashflow Calculator
/month
Mortgage Payment
Monthly Payment
Break Even Down Payment0%
At an estimated rental income of $4,901/month, this property runs a $354/month shortfall after mortgage and carrying costs. Break-even requires approximately 27% down.
All figures are informational estimates by Estateblock.com; actual mortgage payments and insurance rates vary by many factors.
Home Price Evaluation Chart
This Home
$1,198,000
Surrey
Loading...
Clayton
Loading...
Based on 6 comparable active Single Family Residences in Clayton, the average asking price is $1,241,667. This listing is priced 3.5% below the neighbourhood average.
Data is based on list prices of similar active listings. This representation is based in whole or in part on data generated by the Chilliwack & District Real Estate Board, Fraser Valley Real Estate Board or Real Estate Board of Greater Vancouver which assumes no responsibility for its accuracy
Property FAQs
What are the closest top-rated schools to 18913 67a Avenue, Surrey, BC?
The closest top-rated schools are Hazelgrove Elementary School and Clayton Heights Secondary School.
Is 18913 67a Avenue, Surrey, BC in a flood zone?
Flood risk status: No.
What is the estimated monthly mortgage and strata fee for 18913 67a Avenue, Surrey, BC?
With a standard down payment, the estimated monthly mortgage is approximately $7,188.
Award-Winning REALTOR® with 11+ Years of Experience Serving Greater Vancouver
Claim Your Rebate
Attach at least one supporting item (image, video, document, or URL) to verify your rebate action.
This helps us confirm your eligibility and process your rebate quickly.