Located on a quiet cul-de-sac in the South Meadows area of Pitt Meadows, this updated family home offers a balance of space, privacy, and convenience. The neighborhood is primarily residential, with low traffic and a stable community feel, and is near schools, parks, shopping, restaurants, and recreation. The home sits on a level, fully fenced lot with mature landscaping and strong curb appeal. Interior updates provide a functional living space across multiple levels, including generous living and family areas and three bedrooms upstairs. A detached garage/workshop and additional storage enhance usability. Easy access to major routes and local amenities makes this property well suited for families or buyers seeking long-term value. Open House Sun. Mar. 8. 2 to 4. Tks Luke
Open houses
08 Mar, 2026 (01:00 PM to 03:00 PM)
General Info
Price
$1,348,000
Total Bedrooms
3
Total Bathrooms
2
Half Bathrooms
1
Floor Area Total (sqft)
2440
Lot Size
7920
Lot Size Depth
Feet
Lot Size Frontage
0
Basement
Crawl Space
Basement Features
-
Property Metrics
Year Built
1976
Age Of Building
50
Building Type
Single Family Residence
Property Type
Residential
Architecture Style
3 Level Split
Stories
3
Building Features
-
Structures
Residential Detached
Additional Details
MLS® #
R3084320
Building Name
-
Area
Pitt Meadows
Neighbourhood
South Meadows
City
Pitt Meadows
Postal Code
V3Y 1R8
Price per Sqft
$552
Gross Taxes
$6,600.03
Ownership Type
Freehold NonStrata
Maintenance Fee
-
Community Features
Shopping Nearby
Fixtures Included
-
Heating & Cooling
Fireplace
1
Heating Type
Forced Air, Natural Gas, Wood
Utilities
Utility Type
Electricity Connected, Natural Gas Connected, Water Connected
Utility Sewer
Public Sewer, Sanitary Sewer, Storm Sewer
Water (WaterSource)
Public
Parking
Parking Type
Garage Double, Front Access, Paver Block
Total Parking Spaces
4
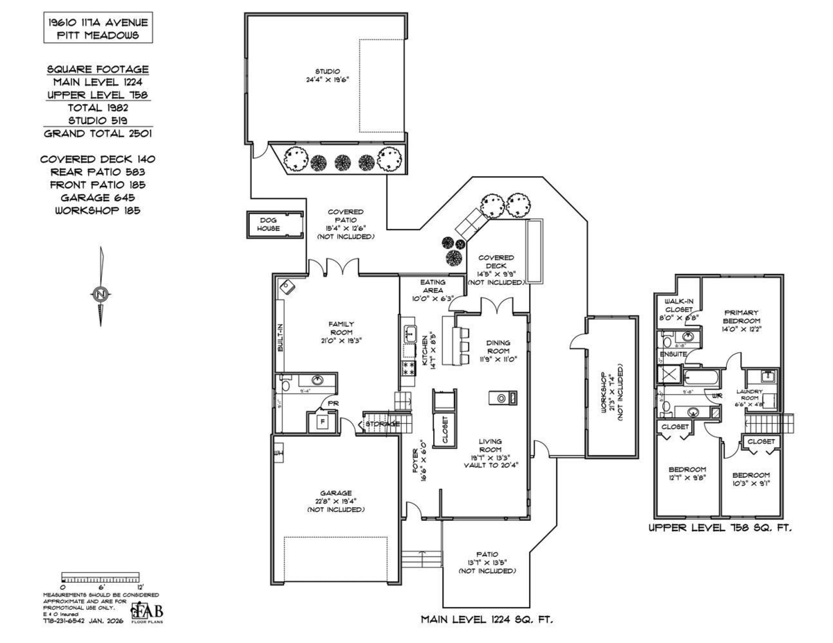
Rooms
Floor
Type
Dimensions
Main Level
Living Room
19'5 x 19'5 ft
Main Level
Dining Room
11'9 x 11'9 ft
Main Level
Kitchen
14'11 x 14'11 ft
Main Level
Eating Area
9'10 x 9'10 ft
Main Level
Family Room
19'1 x 19'1 ft
Main Level
Foyer
16' x 16' ft
Main Level
Other
8'9 x 8'9 ft
Above Level
Bar Room
14' x 14' ft
Above Level
Walk-In Closet
8' x 8' ft
Above Level
Bedroom
11'6 x 11'6 ft
Above Level
Bedroom
14'11 x 14'11 ft
Above Level
Laundry
6'6 x 6'6 ft
Above Level
Other
6'7 x 6'7 ft
Above Level
Other
9'9 x 9'9 ft
Above Level
Primary Bedroom
14'0 x 14'0 ft
Bathrooms
Floor
Ensuite
Pieces
Main Level
No
#2
Above Level
No
#3
Above Level
Yes
#5
Listed by: RE/MAX LIFESTYLES REALTY
NOTE: This representation is based in whole or in part on data generated by the Chilliwack & District Real Estate Board, Fraser Valley Real Estate Board or Greater Vancouver REALTORS® which assumes no responsibility for its accuracy.
Neighborhood & Transit Info
Public Schools
Secondary
Pitt Meadows Secondary School
0.38 km
Elementary
Edith McDermott Elementary School
0.95 km
Information includes BC Government Open License data; school details change often and are offered solely as general guidance.
Private Schools
Elementary
James Cameron School
1.49 km
Elementary, Secondary
Maple Ridge Christian School
1.99 km
Closest Transit
Bus Stop
Westbound 116B Ave @ Bonson Rd
0.11 km
Skytrain
West Coast Express @ Maple Meadows Station
0.79 km
Demographics
Post-Secondary Education
Below Average
24.3%
No Certificate/Degree
Below Average
9.7%
Owner Occupied
Above Average
74.9%
Employment Rate
Average
65%
Noise/ Power Lines
Road/Hwy Noise
Possible
Railway/Sky train Noise
Unlikely
Airport/Port Noise
Unlikely
Close to major Power Lines
Unlikely
Other
Agricultural Land Reserve (ALR)
Unlikely
Flood Area
Unlikely
Close to Cemeteries
Unlikely
Local Info
Estimated Mortgage Calculator
/month
Principal & Interest
Property Taxes$550
Maintenance fee0
With a 20% down payment, buyers can expect an estimated $5,698/month in total housing costs on this $1,348,000 property — $5,148 mortgage payment, $550 property tax.
All figures are informational estimates by Estateblock.com; actual mortgage payments and insurance rates vary by many factors.
Listing data last synced:
Estimated Cashflow Calculator
/month
Mortgage Payment
Monthly Payment
Break Even Down Payment0%
Based on $4,165/month estimated rent and $5,870/month in total housing costs, this property has a -$1,705/month cashflow. Break-even down payment: approximately 47%.
All figures are informational estimates by Estateblock.com; actual mortgage payments and insurance rates vary by many factors.
Home Price Evaluation Chart
This Home
$1,348,000
Pitt Meadows
Loading...
South Meadows
Loading...
No active comparables are currently available for this property type in Pitt Meadows. Pricing context may be limited at this time.
Data is based on list prices of similar active listings. This representation is based in whole or in part on data generated by the Chilliwack & District Real Estate Board, Fraser Valley Real Estate Board or Real Estate Board of Greater Vancouver which assumes no responsibility for its accuracy
Property FAQs
What are the closest top-rated schools to 19610 117a Avenue, Pitt Meadows, BC?
The closest top-rated schools are Pitt Meadows Secondary School and Edith McDermott Elementary School.
Is 19610 117a Avenue, Pitt Meadows, BC in a flood zone?
Flood risk status: No.
What is the estimated monthly mortgage and strata fee for 19610 117a Avenue, Pitt Meadows, BC?
With a standard down payment, the estimated monthly mortgage is approximately $8,088.
Award-Winning REALTOR® with 11+ Years of Experience Serving Greater Vancouver
Claim Your Rebate
Attach at least one supporting item (image, video, document, or URL) to verify your rebate action.
This helps us confirm your eligibility and process your rebate quickly.