2701 1289 Hornby St, Vancouver, BC, MLS® R3067392

$1,439,000
Est. Mortgage /mo

NEW

$1,439,000
Est. Mortgage /mo
Dan Marusin
Dan Marusin
Renanza Realty
778-918-5990
Award-Winning REALTOR® with 11+ Years of Experience Serving Greater Vancouver
Go See This Home Now
2 Beds
2 Baths
1 Stories
$ 746.94 Maint. Fee
916 sqft
2022 built
Show more info
Photos
Map
Street view
Schools
Crime
Commute
Shop & Eat

2701 1289 Hornby St, Vancouver, BC | MLS® R3067392 Property Details

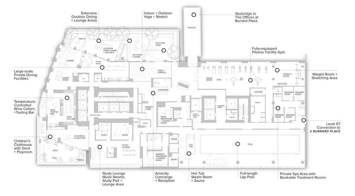
Perched high above Downtown Vancouver in the iconic One Burrard Place. South-West corner unit with breathtaking views of English Bay. Wraparound floor-to-ceiling windows flooding the home with natural light and framing sweeping ocean vistas. The open-concept kitchen features premium Gaggenau appliances, the spacious island, and seamless flow into the living and dining areas. Primary suite features a spa-inspired ensuite. Den is perfectully converted into huge walk-in-closet. Residents enjoy over 30,000 sq. ft. of world-class Club One amenities including a state-of-the-art fitness centre, indoor pool, sauna, hot tub, wine cellar, outdoor BBQ terrace, study/music rooms, 24-hr concierge and more. School catchment: Elsie Roy Elementary, King George Secondary, Kitsilano Secondary.

General Info

Price $1,439,000
Total Bedrooms 2
Total Bathrooms 2
Half Bathrooms 0
Floor Area Total (sqft) 916
Lot Size -
Lot Size Depth -
Lot Size Frontage -
Basement None
Basement Features BasementFeatures

Property Metrics

Year Built 2022
Age Of Building 3
Building Type Apartment/Condo
Property Type Residential
Stories 1
Appliances Included Washer/Dryer, Dishwasher, Refrigerator, Stove, Microwave, Oven
Building Amenities Clubhouse, Exercise Centre, Recreation Facilities, Concierge, Caretaker, Trash, Maintenance Grounds, Gas, Hot Water, Management, Sewer, Snow Removal, Water
Building Features BuildingFeatures
Structures Multi Family, Residential Attached

Additional Details

MLS® # R3067392
Area Vancouver West
Neighbourhood Downtown VW
City Vancouver
Gross Taxes $3,673.33
Ownership Type Freehold Strata
Maintenance Fee $746.94
Community Features Shopping Nearby
Amenities Nearby Clubhouse, Exercise Centre, Recreation Facilities, Concierge, Caretaker, Trash, Maintenance Grounds, Gas, Hot Water, Management, Sewer, Snow Removal, Water
Fixtures Included -

Heating & Cooling

Fireplace -
Heating Type Forced Air
Cooling Central Air, Air Conditioning

Utilities

Utility Type Community, Electricity Connected, Natural Gas Connected, Water Connected
Utility Sewer Public Sewer, Sanitary Sewer, Storm Sewer
Water (WaterSource) Public

Parking

Parking Type Underground, Rear Access, Garage Door Opener
Total Parking Spaces 1

🔒 Join or Sign In • Real estate boards need a verified account to see Property data

Strata Restrictions No Restrictions
Rental Restrictions -
Zoning RES
Rental Suites -
Laundry In Unit
# of Kitchens 1
Flooring Hardwood, Laminate
Foundation Concrete Perimeter
Interior Features Storage
View 1
View Description Ocean Views & English Bay
Units In Development 394
Exterior Features Garden, Balcony
Sewer Public Sewer, Sanitary Sewer, Storm Sewer
Roof Other

Property History

🔒 Join or Sign In • Real estate boards need a verified account to see Property data

Status Date Price
Show more

Listed by: RE/MAX Crest Realty

NOTE: This representation is based in whole or in part on data generated by the Chilliwack & District Real Estate Board, Fraser Valley Real Estate Board or Greater Vancouver REALTORS® which assumes no responsibility for its accuracy.

Neighborhood Info

Public Schools

Secondary
King George Secondary School
1.43 km
Elementary
Elsie Roy Elementary School
Average
0.81 km
6.1/10

Information includes BC Government Open License data; school details change often and are offered solely as general guidance.

Private Schools

Elementary
Anchor Point Montessori
0.11 km
Secondary
Pattison High School
0.48 km

Closest Transit

Bus Stop
Southbound Burrard St @ Burnaby St
0.1 km
Skytrain
Skytrain @ Yaletown-Roundhouse Stn
0.66 km

Noise/ Power Lines

Road/Hwy Noise
Possible
Railway/Sky train Noise
Unlikely
Airport/Port Noise
Unlikely
Close to major Power Lines
Unlikely

Other

Agricultural Land Reserve (ALR)
Unlikely
Flood Area
Unlikely
Close to Cemeteries
Unlikely

Welcome to 2701 1289 Hornby Street, Vancouver, BC - A Vibrant Downtown Community

As we walk through the doors of this stunning property, I'm excited to share with you the many charms of this vibrant downtown neighborhood, located in the heart of Vancouver, BC. With MLS®R3067392, this exceptional home offers the perfect blend of urban convenience, natural beauty, and community spirit.

Nurturing Minds: Elite Education Options

Our children's education is of utmost importance, and this community has some of the best schools in the city. Elsie Roy Elementary School, located just 0.81 km from 2701 1289 Hornby Street, boasts an impressive rating of 6.1/10. King George Secondary School, another highly-regarded institution, is just a short 1.43 km away. For families seeking a more independent learning environment, Anchor Point Montessori Elementary School (0.11 km away) and Pattison School (0.48 km away) offer excellent alternatives.

Safety First: Low Crime Rates

According to the latest statistics from Statistics Canada (2020), this neighborhood enjoys a relatively low crime rate, with an overall crime rate of 7,470.82 incidents per 100,000 population. Compared to other Canadian cities, this is considered an Average rate. The year-over-year change in the total crime rate is a reassuring -14.94%.

Neighborhood Vitality: Diverse Community

This community is home to a diverse range of residents, with 47% holding a university certificate or degree - a testament to the area's strong academic focus. The median household income is $55,936, which is Below Average compared to the BC average. However, the median personal income is $40,817, a respectable Above Average figure. The area boasts a high percentage of households with a mortgage (72.8%), indicating a strong sense of community and financial stability.

Easy Commuting: Convenient Transit Options

With the Southbound Burrard St @ Burnaby St bus stop just 0.1 km away, getting around the city is a breeze. According to the latest data, 26% of the population uses public transportation, while 27.2% rely on cars, and 3.2% use bicycles. A staggering 41.7% of residents walk to their destinations, making this a pedestrian-friendly neighborhood.

Community Spirit: Vibrant Amenities

This neighborhood is surrounded by an abundance of amenities, including parks, beaches, trails, dog parks, shopping malls, grocery stores, restaurants, coffee shops, and hospitals. The average value of dwellings in this area is a respectable $705,201, making it a sought-after destination for those seeking a comfortable and convenient lifestyle.

Insider Insights: A Home for All

As a local realtor with over a decade of experience, I can confidently say that this community has something for everyone. Whether you're a young professional, a family, or a retiree, 2701 1289 Hornby Street, Vancouver, BC (MLS®R3067392) is an excellent choice. Come and experience it for yourself.

Local Info

Calculate your monthly mortgage payments

/month
Principal & Interest
Property Taxes $202
Maintenance fee 0
All figures are informational estimates by Estateblock.com; actual mortgage payments and insurance rates vary by many factors.

Cash Flow Analysis

/month
Mortgage Payment $3201
Monthly Payment $3802
Break Even Down Payment 0%
All figures are informational estimates by Estateblock.com; actual mortgage payments and insurance rates vary by many factors.

Price Evaluation Chart

Filter
Beds Home Types Square Feet Lot Size Year Built
This Home $1,439,000
Vancouver $1,115,119
Downtown VW $1,269,498
Data is based on list prices of similar active listings. This representation is based in whole or in part on data generated by the Chilliwack & District Real Estate Board, Fraser Valley Real Estate Board or Real Estate Board of Greater Vancouver which assumes no responsibility for its accuracy

Listing Price Comparision

This house $1,400,000
Surrey

No comparables

Fleetwood Tynehead $1,399,000 -6.38%
Data is based on list prices of similar active listings. This representation is based in whole or in part on data generated by the Chilliwack & District Real Estate Board, Fraser Valley Real Estate Board or Real Estate Board of Greater Vancouver which assumes no responsibility for its accuracy
Dan Marusin
Dan Marusin
Renanza Realty
778-918-5990
Award-Winning REALTOR® with 11+ Years of Experience Serving Greater Vancouver

Earn Cashback

Potential Cashback for this listing if you buy with us

$0
out of $9,299
0 of 17 missions
(0.0% out of 100%)

Login to track your cashback progress

Sign up on Estateblock.com

$465 / 5%

Use the “Hot Deal” module on our website

$186 / 2%

Sign up for our Newsletter

$93 / 1%

Create a saved search on Estateblock.com

$186 / 2%

Book a Property Showing with us

$186 / 2%

Get a mortgage through our recommended broker

$651 / 7%

Use our recommended insurance provider

$186 / 2%

Use our recommended notary for closing

$186 / 2%

Sign an Exclusive Buyer’s Agency Agreement with us

$651 / 7%

Share Estateblock.com on social media with a short intro

$279 / 3%

Refer a friend who successfully buys or sells with us

$2,325 / 25%

Sell your home with us2

$2,325 / 25%

Leave a Public Review in Google

$651 / 7%

Follow us on Insta or FB and tag us in a post

$279 / 3%

Create a short video testimonial after closing

$279 / 3%

Leave a Facebook review on our page

$186 / 2%

Talk with one of our mortgage brokers

$186 / 2%

Similar nearby listings

3210 1289 Hornby Street, Vancouver, BC
NEW
$1,249,900

3210 1289 Hornby Street, Vancouver, BC

2 Beds
2 Baths
844 sqft
2022 built
MLS® R3056712 , FaithWilson Christies International Real Estate
308 3668 W 10th Avenue, Vancouver, BC
$1,630,000

308 3668 W 10th Avenue, Vancouver, BC

2 Beds
2 Baths
965 sqft
2025 built
MLS® R3031574 , LDG Realty
1302 1568 Alberni Street, Vancouver, BC
$2,680,000

1302 1568 Alberni Street, Vancouver, BC

2 Beds
2 Baths
1367 sqft
2023 built
MLS® R3020701 , Youlive Realty
2801 680 Seylynn Crescent, North Vancouver, BC
NEW
$1,190,000

2801 680 Seylynn Crescent, North Vancouver, BC

2 Beds
2 Baths
1022 sqft
2018 built
MLS® R3054374 , Rennie & Associates Realty Ltd.
4705 4880 Lougheed Highway, Burnaby, BC
NEW
$672,800

4705 4880 Lougheed Highway, Burnaby, BC

1 Beds
1 Baths
568 sqft
2024 built
MLS® R3057239 , Laboutique Realty
1210 1277 Hornby Street, Vancouver, BC
$1,458,000

1210 1277 Hornby Street, Vancouver, BC

2 Beds
2 Baths
818 sqft
2026 built
MLS® R2988613 , Sunstar Realty Ltd. & Sunstar Realty Ltd.
2608 1277 Hornby Street, Vancouver, BC
$1,499,000

2608 1277 Hornby Street, Vancouver, BC

2 Beds
2 Baths
805 sqft
2026 built
MLS® R3032005 , Initia Real Estate
309 480 W 16th Avenue, Vancouver, BC
NEW
$1,449,900

309 480 W 16th Avenue, Vancouver, BC

2 Beds
2 Baths
772 sqft
2027 built
MLS® R3052588 , Wesgroup Realty Ltd.
1504 1568 Alberni Street, Vancouver, BC
$1,990,000

1504 1568 Alberni Street, Vancouver, BC

2 Beds
2 Baths
900 sqft
2023 built
MLS® R2953652 , VIRANI REAL ESTATE ADVISORS
606 889 Pacific Street, Vancouver, BC
$1,150,000

606 889 Pacific Street, Vancouver, BC

2 Beds
2 Baths
959 sqft
2021 built
MLS® R2993086 , RE/MAX Crest Realty

Similar Sold listings

🔒 Join or Sign In • Real estate boards need a verified account to see photos & sold data

401 1708 Columbia Street, Vancouver, BC
Sold
$608,000

401 1708 Columbia Street, Vancouver, BC

1 Beds
1 Baths
548 sqft
2013 built
MLS® R3016069 , Macdonald Realty
512 1283 Howe Street, Vancouver, BC
Sold
$498,000

512 1283 Howe Street, Vancouver, BC

1 Beds
1 Baths
482 sqft
2019 built
MLS® R2998564 , RE/MAX Masters Realty
322 7828 Granville Street, Vancouver, BC
Sold
$899,000

322 7828 Granville Street, Vancouver, BC

2 Beds
2 Baths
970 sqft
2018 built
MLS® R2992584 , Sutton Group - 1st West Realty
2807 777 Richards Street, Vancouver, BC
Sold
$559,000

2807 777 Richards Street, Vancouver, BC

1 Beds
1 Baths
509 sqft
2016 built
MLS® R3013289 , Nu Stream Realty Inc.
3508 4510 Halifax Way, Burnaby, BC
Sold
$620,000

3508 4510 Halifax Way, Burnaby, BC

1 Beds
1 Baths
532 sqft
2019 built
MLS® R3025431 , Oakwyn Realty Ltd.
1901 668 Citadel Parade, Vancouver, BC
Sold
$545,000

1901 668 Citadel Parade, Vancouver, BC

1 Beds
1 Baths
564 sqft
2007 built
MLS® R3029265 , RE/MAX Real Estate Services
3007 602 Citadel Parade, Vancouver, BC
Sold
$649,000

3007 602 Citadel Parade, Vancouver, BC

1 Beds
1 Baths
626 sqft
2007 built
MLS® R3048046 , Angell, Hasman & Associates Realty Ltd. & Angell, Hasman & Associates Realty Ltd.
203 1409 W Pender Street, Vancouver, BC
Sold
$925,000

203 1409 W Pender Street, Vancouver, BC

2 Beds
2 Baths
824 sqft
2011 built
MLS® R3030087 , Macdonald Realty
201 3333 Main Street, Vancouver, BC
Sold
$799,000

201 3333 Main Street, Vancouver, BC

1 Beds
1 Baths
701 sqft
2011 built
MLS® R3022516 , Macdonald Realty
3102 455 SW Marine Drive, Vancouver, BC
Sold
$649,000

3102 455 SW Marine Drive, Vancouver, BC

1 Beds
1 Baths
485 sqft
2019 built
MLS® R2987865 , RE/MAX Crest Realty

Book a tour

Please complete the form. We will the arrangements and give you a call, typically within 1-2 hours. Or Call Us 778-918-5990
Thank you Your message has been sent
Go See This Home Now