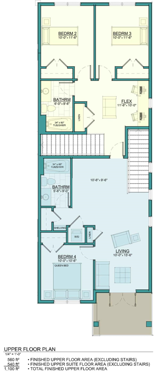
Quality, design, and flexibility come together in this exceptional new home by Kurt’s Construction, crafted for modern living and multi-generational options, The main level stuns with a soaring 12’ ceiling in the great room, an expansive open dining space, and a chef-inspired kitchen with custom cabinetry and walk-in pantry. The primary suite offers a spa-style ensuite and generous walk-in closet, while the front den provides the perfect office or quiet retreat. Upstairs, two bedrooms, full bath, and a bright flex room offer incredible versatility—with potential for a self-contained suite featuring its own living area, bedroom, bath, and laundry. A rare opportunity just steps to the lake, scenic trails, parks, golfing and village shops.
General Info
Price
$1,249,000
Total Bedrooms
4
Total Bathrooms
3
Half Bathrooms
1
Floor Area Total (sqft)
2790
Lot Size
4277
Lot Size Depth
Feet
Lot Size Frontage
47.41
Basement
Crawl Space
Basement Features
-
Property Metrics
Year Built
2026
Age Of Building
0
Building Type
Single Family Residence
Property Type
Residential
Stories
2
Building Features
-
Structures
Residential Detached
Additional Details
MLS® #
R3091018
Building Name
-
Area
Harrison Lake
Neighbourhood
Harrison Hot Springs
City
Harrison Hot Springs
Postal Code
V0M 1K0
Price per Sqft
$448
Gross Taxes
$1,714.38
Ownership Type
Freehold NonStrata
Maintenance Fee
-
Heating & Cooling
Fireplace
1
Heating Type
Forced Air, Natural Gas
Utilities
Utility Type
Electricity Connected, Natural Gas Connected, Water Connected
Utility Sewer
Public Sewer, Sanitary Sewer, Storm Sewer
Water (WaterSource)
Public
Parking
Parking Type
Garage Double, Front Access, Garage Door Opener
Total Parking Spaces
4
Rooms
Floor
Type
Dimensions
Main Level
Great Room
17'6 x 17'6 ft
Main Level
Dining Room
16'6 x 16'6 ft
Main Level
Kitchen
17'6 x 17'6 ft
Main Level
Pantry
8' x 8' ft
Main Level
Den
10'6 x 10'6 ft
Main Level
Foyer
6'6 x 6'6 ft
Main Level
Primary Bedroom
13' x 13' ft
Main Level
Walk-In Closet
6' x 6' ft
Main Level
Laundry
8' x 8' ft
Main Level
Mud Room
8' x 8' ft
Above Level
Bedroom
10' x 10' ft
Above Level
Bedroom
10' x 10' ft
Above Level
Bedroom
10'6 x 10'6 ft
Above Level
Flex Room
11'6 x 11'6 ft
Above Level
Family Room
10' x 10' ft
Above Level
Other
10'6 x 10'6 ft
Bathrooms
Floor
Ensuite
Pieces
Main Level
No
#2
Above Level
No
#4
Listed by: RE/MAX Nyda Realty Inc.
NOTE: This representation is based in whole or in part on data generated by the Chilliwack & District Real Estate Board, Fraser Valley Real Estate Board or Greater Vancouver REALTORS® which assumes no responsibility for its accuracy.
Neighborhood & Transit Info
Private Schools
Elementary, Secondary
Seabird Island Community School
6.11 km
Elementary, Secondary
Seabird Island Community School
6.11 km
Closest Transit
Bus Stop
Eagle at Bear (SB)
0.13 km
Skytrain
West Coast Express @ Mission City Station
42.44 km
Crime Rate
Total Crime Rate
High
Violent Crime Rate
High
Property Crime Rate
High
Demographics
Post-Secondary Education
Below Average
13.1%
No Certificate/Degree
Below Average
12%
Owner Occupied
Below Average
54.8%
Employment Rate
Below Average
29.7%
Noise/ Power Lines
Road/Hwy Noise
Possible
Railway/Sky train Noise
Unlikely
Airport/Port Noise
Unlikely
Close to major Power Lines
Unlikely
Other
Agricultural Land Reserve (ALR)
Unlikely
Flood Area
Unlikely
Close to Cemeteries
Unlikely
Local Info
Estimated Mortgage Calculator
/month
Principal & Interest
Property Taxes$143
Maintenance fee0
With a 20% down payment, buyers can expect an estimated $4,913/month in total housing costs on this $1,249,000 property — $4,770 mortgage payment, $143 property tax.
All figures are informational estimates by Estateblock.com; actual mortgage payments and insurance rates vary by many factors.
Listing data last synced:
Estimated Cashflow Calculator
/month
Mortgage Payment
Monthly Payment
Break Even Down Payment0%
Based on $3,934/month estimated rent and $5,072/month in total housing costs, this property has a -$1,138/month cashflow. Break-even down payment: approximately 40%.
All figures are informational estimates by Estateblock.com; actual mortgage payments and insurance rates vary by many factors.
Home Price Evaluation Chart
This Home
$1,249,000
Harrison hot springs
Loading...
Harrison Hot Springs
Loading...
This listing has no active comparable properties in Harrison hot springs at present. The price evaluation chart will update as similar listings become available.
Data is based on list prices of similar active listings. This representation is based in whole or in part on data generated by the Chilliwack & District Real Estate Board, Fraser Valley Real Estate Board or Real Estate Board of Greater Vancouver which assumes no responsibility for its accuracy
Property FAQs
What are the closest top-rated schools to 396 Eagle Street, Harrison Hot Springs, BC?
The closest top-rated schools are Seabird Island Community School and Seabird Island Community School.
Is 396 Eagle Street, Harrison Hot Springs, BC in a flood zone?
Flood risk status: No.
What is the estimated monthly mortgage and strata fee for 396 Eagle Street, Harrison Hot Springs, BC?
With a standard down payment, the estimated monthly mortgage is approximately $7,494.
Award-Winning REALTOR® with 11+ Years of Experience Serving Greater Vancouver
Claim Your Rebate
Attach at least one supporting item (image, video, document, or URL) to verify your rebate action.
This helps us confirm your eligibility and process your rebate quickly.